Page 127 - Turner 1st sem Practicals
P. 127
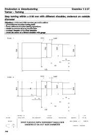
Production & Manufacturing Exercise 1.3.37
Turner - Turning
Step turning within ± 0.06 mm with different shoulder, undercut on outside
diameter
Objectives : At the end of this exercise you shall be able to
• grind different shoulder turning tools
• form a different shoulder turning operations
• check squareness of a square shoulder
• measure chamfer of bevelled shoulder
• check the radius of a filleted shoulder with gauge.
114

