Basic HTML Version
Table of Contents
View Full Version
Page 121 - Turner 1st sem Practicals
P. 121
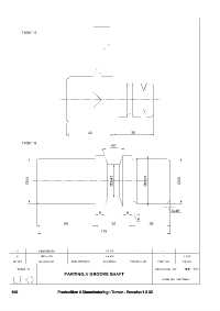
108 Producltion & Manufacturing : Turner - Exercise 1.3.35
116
117
118
119
120
121
122
123
124
125
126